
In response to the roof flying off the No. 41 driven by Bayley Currey on Saturday afternoon in the Truck Series race at Atlanta Motor Speedway, NASCAR has revised its rule book to promote stronger bracing for windshields.
The update, which is similar in nature to windshield bracing rules in the Xfinity Series, was provided to teams on Saturday night so the changes could be implemented before they left for Las Vegas Motor Speedway early this week.
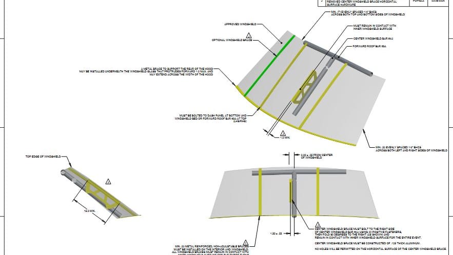
The drawing below has been updated to reflect the changes.

E. Non-permanent adhesive sealant must be used to seal the windshield to the windshield bed.
F. A 1 inch wide, black, self-adhesive border may be installed on the sides of the windshield. Tint or tape may be added to the windshield for adverse sunlight conditions; paint will not be permitted.
G. Windshield braces must be used. Windshield braces and installation must conform to the (above) drawing:
Before losing his roof, the windshield actually buckled on the the Niece Motorsports No. 41 truck. The pressure mounted on the windshield bracing before it ripped the roof off.
“We hit a piece of debris early and when that happened, it knocked the left side brace down and there’s so much turbulent air here, trucks moving around and being in the draft,” Currey told Sportsnaut after the race. “It’s start flapping and flapping and it’s like a Coke can, you bend it back and forth, and it’s going to break.
“Basically, the windshield bed separated from the roof, all the braces broke and for about 20 laps, was running with the windshield running on the roll cage.
“I didn’t want to stop because we had a great truck. It was awesome. We could have won the race but it kept getting worse and worse and worse. I could feel the drag getting into the truck, could feel it getting colder inside the truck. It started whistling down the backstretch and I knew it coming.”
NASCAR found no evidence that the team had weakened the bracing to find a performance advantage but worked quickly to come up with a rules change to strengthen support components. The exact changes can be found below. The braces in yellow have been added and those in green are optional for superspeedway races.

Matt Weaver is a Motorsports Insider for Sportsnaut. Follow him on Twitter.